10 Whyte Place, CURTIN ACT 2605

Sold

  • 3
  • 1
Land size: 685 m²

Sought after tree-lined address!

Ideally positioned in a tree lined cul-de-sac, this excellent family friendly residence is an outstanding opportunity for those seeking to get a foothold in a tightly held central location, offering easy access to local shops, popular schools, transport and amenities.
Siding reserve and bathed in natural light, the property occupies a delightful established garden and has retained the same owner for over 25 years.
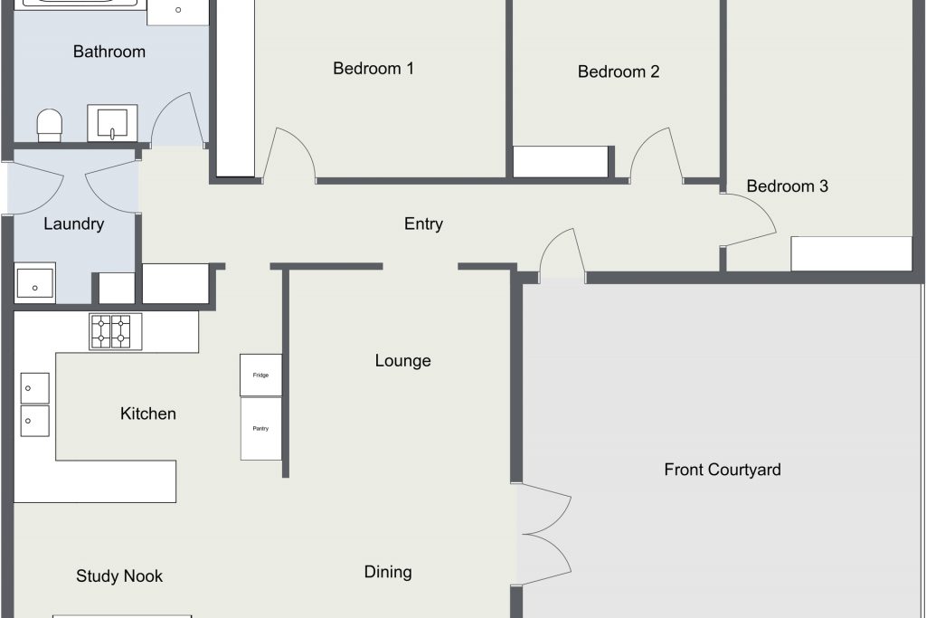
Featuring a practical layout with three well proportioned bedrooms plus living areas that merge effortlessly to an expansive outdoor entertaining area, residents can be assured of space and relaxed gatherings with family and friends.
Delivering an attractive modern kitchen and bathroom with excellent inclusions, polished floorboards, and built-in study nook, the property supports a fabulous and convenient lifestyle. The garden hosts an array of zones in which to retreat, whilst nearby walking and bike trails offer picturesque routes to Woden, Lake Burley Griffin, the city and more.
If convenience, lifestyle and location are a priority, then this is the home for you.

Additional attributes;
*North facing living areas
*Renovated kitchen with Miele appliances
*Induction cooktop
*Renovated bathroom & laundry
*Freshly painted
*Freshly polished timber floors in living areas
*Ducted gas heating
*Evaporative cooling (Installed 2018)
*Continuous gas hot water
*Built-ins in all bedrooms
*Timber workshop with shelving and work-bench
*Tool shed
*Vegetable gardens and area suitable for free-range chickens
*Study nook with built in desk
*Close to schools and shops (can walk to local schools without crossing a road)

Recently Listed Properties

Search all 94 properties