Chic reno, convenient location
Tastefully renovated throughout, with a chic New York vibe. Positioned within a genuine stroll to both the Kingston Foreshore and the Kingston Shopping Village you will be spoiled for choice with modern eateries and entertainment. Modernised with a stylish combination of contrasting visual textures, a complementary neutral colour palette and clever design features, there is nothing left to do but move in and enjoy.
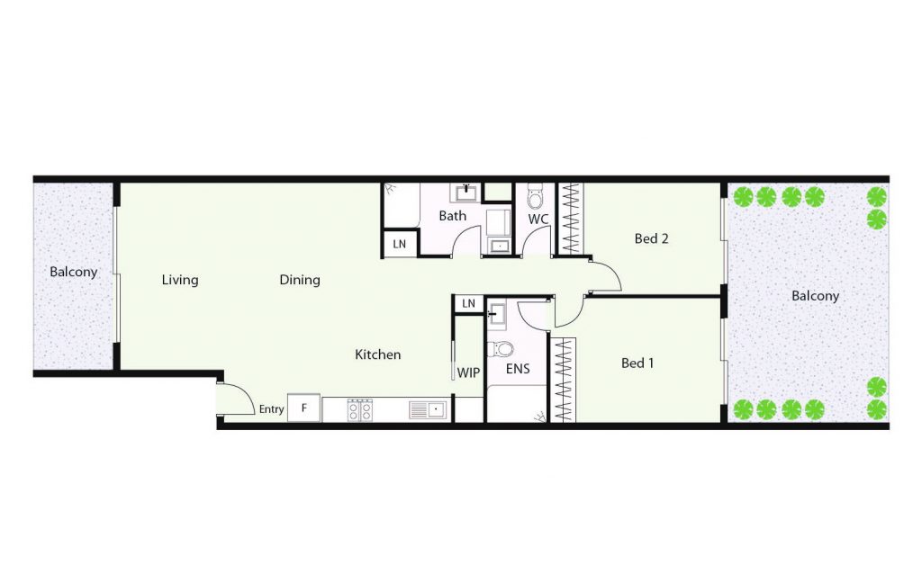
Convenient ground floor location, with a central open plan living area and front and back courtyards. A well designed kitchen complete with butlers pantry, stone benchtops, ceramic cooktop, dishwasher and custom cabinetry. Both the generous bedrooms have built in robes and the master suite with ensuite has an outlook over Kennedy Street and the heritage homes of Kingston.
The complex is well equipped and maintained with a tennis court, swimming pool and gymnasium. A central location within close proximity, to Kingston shops, the Parliamentary Triangle and lakeside recreation areas. A must inspect, a quiet location whilst still enjoying the inner south lifestyle and locale, ideal live in or investment.
Renovated throughout
Ground floor access
Dual courtyards
Heritage outlook
Master suite plus ensuite
Floating timber floor
Custom storage throughout