Opportunity Knocking
Here is a great opportunity for someone looking for an entry level home into this area. Whether youre a new home buyer, a renovator or investor this home has plenty of appeal. The owners are moving elsewhere and this property must be sold at auction.
Located in a tightly held cul-de-sac with flowering plum trees down the street, this home is perfect for many reasons. The location is fantastic for access to schools, no need to cross roads. It is also within walking distance of shops, public transport, golf club and on the door step to a wide open expanse of green space making it feel like you are in the country.
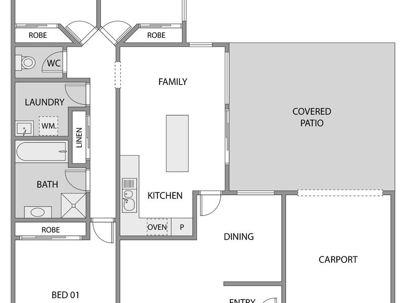
One of the many benefits living in the North of Canberra is the NBN. The home has a good sized well-presented kitchen with some stainless steel appliances. There are tiled floors throughout the living areas and carpet in the bedrooms, keeps the allergies to a minimum. With large windows throughout, the home you will have an abundance of light during the day. All the bedrooms have built in robes with the master bedroom separated from the other bedrooms.
Another bonus to this home is the private outdoor undercover patio off the kitchen for entertainment all year round. This is the perfect place to relax and share a meal with friends and family. Not only is the patio large but you will be surprised by the amount of room in the rear yard. With mature trees, it is fully secured for children or pets to play until they can play no more.
There are two sheds in the rear yard for storage. Included in the sale is a satellite dish that picks up Chinese programs. With easy access to the GDE, Canberra CBD is only minutes away and the Gunghalin Town Centre is just over the road making this the perfect home for anyones future.
Features
Three good sized bedrooms all with built in robes
Great outdoor patio area
Private fully secure rear yard with mature trees and shrubs
Close to schools, shops, public transport and golf club
Minutes away from Gunghalin Town Centre
Electric heating
Bathroom with full sized bath and a skylight
Separate toilet
Single carport with access for a trailer
Foxtel and NBN connected with satellite dish for Chinese programs
Two sheds in the rear yard for storage