4/16 Gabriel Place, FLOREY ACT 2615

Sold

  • 2
  • 1
  • 1
Land size: 6803.1 m²Building size: 9 m²

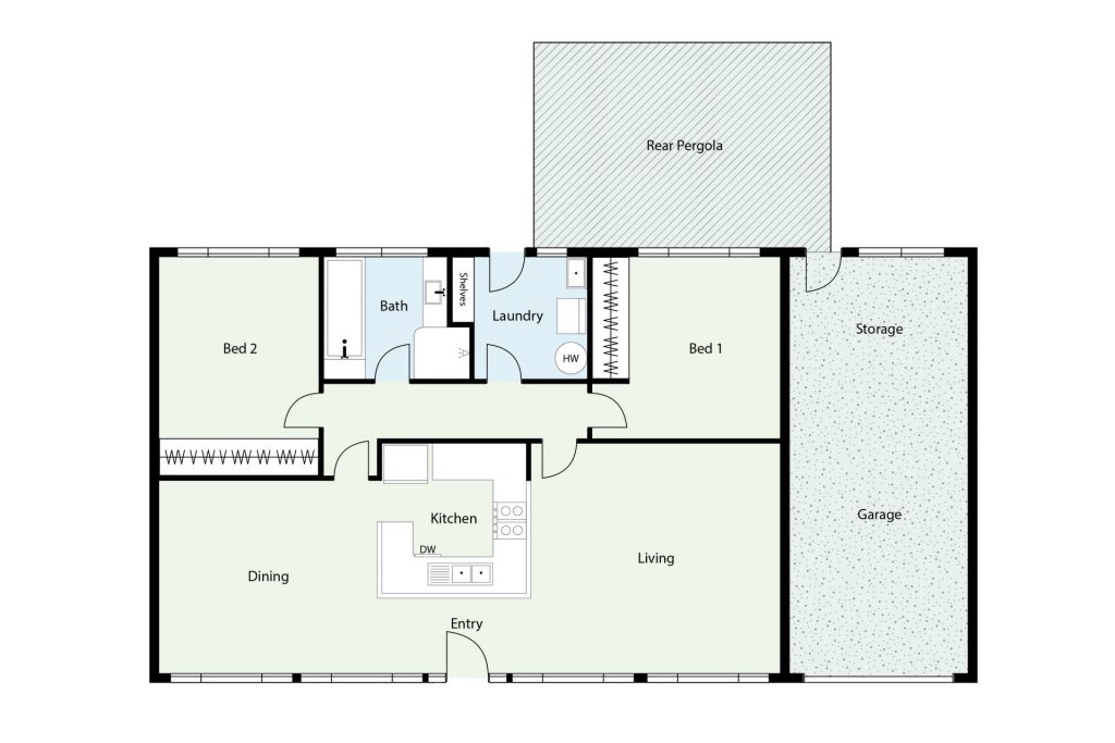
Free-standing single-level two-bedroom townhouse

Perfect opportunity for the clever first home buyer or the shrewd downsizer looking to secure a stylish single level townhouse in a prime central North-Side location close to shops, schools and medical centres and only minutes to the Belconnen Town Centre. Tucked away in a small complex of only 15 free-standing residences offering 2 bedrooms with mirrored built-in wardrobes, north-facing open-plan living areas, reverse cycle air-conditioning, well equipped galley-style kitchen, bright bathroom, separate laundry room and attached garage with automatic roller door plus extra storage/workshop space. Alfresco entertaining is an absolute breeze with the choice of either the enormous northerly aspected front courtyard or the additional rear courtyard with its private pergola sheltered area.

* Single level 2 bedroom townhouse of approximately 85 sqm
* Enormous private north-facing front courtyard garden with extensive paved area
* Sun-drenched open-plan living and family areas
* Centrally positioned galley-style kitchen with dishwasher and new electric range
* Bright bathroom with separate shower recess
* Built-in mirrored wardrobes to both bedrooms
* Thermal blinds and ceiling fans to living areas and bedrooms
* Full height external roller blinds to living area windows
* Split-system reverse-cycle air-conditioner in living area
* Separate laundry room
* Attached garage with automatic roller door
* Additional rear courtyard with paved and pergola-sheltered entertaining area
* Small pet-friendly complex of only 15 residences
* Short stroll to Florey shops, medical centre and primary school
* Few minutes drive to Belconnen Town Centre
* Body Corporate levies – $275.67 p/q
* Sinking fund contribution – $41.03 p/q
* Rates – $2,094.94 PA

Recently Listed Properties

Search all 94 properties