43 Goodenia Street, Rivett ACT 2611

Sold $485,000

  • 3
  • 1
  • 2
  • EER4.0
Land size: 244 m²Building size: 107 m²

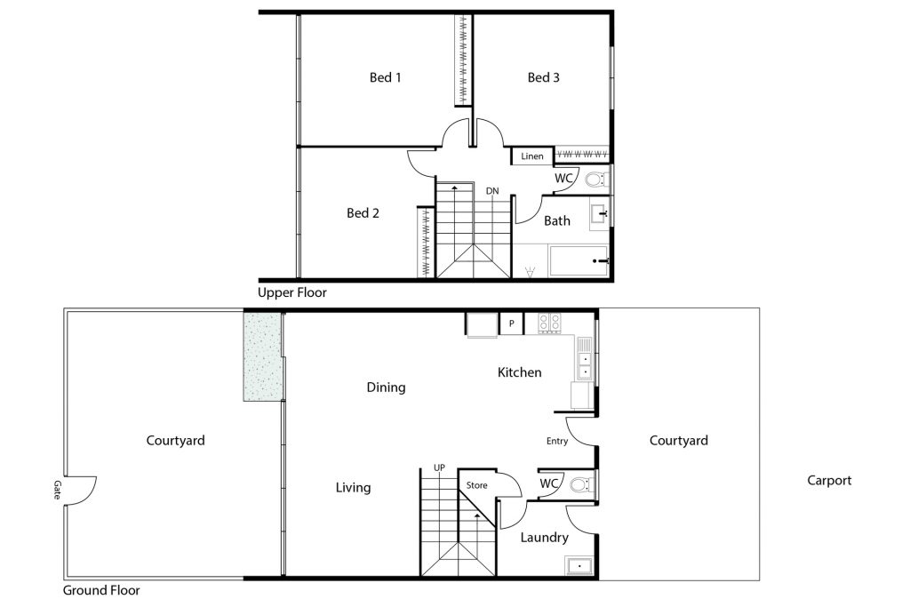
Entry Level separate tittle townhouse

An outstanding opportunity for the astute buyer to secure a separate title townhouse, superbly located within the heart of Weston Creek. This recently renovated two storey townhouse boasts a sun drenched floor plan with the extensive use of north facing windows and sliding doors.

Downstairs offers an open plan renovated kitchen that flows directly to the meals and spacious lounge area. Upstairs includes three bedrooms all with built in robes and supported by an updated bathroom and separate toilet. An additional toilet and laundry are located downstairs.

If you love to entertain your friends and family outdoors then you have two areas to choose from, the large rear north facing paved courtyard with direct access through the gate to the quiet cul de sac behind or the private front entry courtyard that overlooks the easy care gardens.

Stroll to local playing fields, shops and public transport. Only minutes to Cooleman Court, Woden, Canberra City and Mount Stromlo Park. A great entry level townhouse with no body corporate fees.

Features include:
Currently tenanted at $465 per week in a fixed lease until 17 October 2020.
Separate title townhouse
Easycare 244m2 block
North facing to the rear
Two story design
Recently repainted throughout
New floor coverings
Three bedrooms all with built in robes
Spacious north facing living area
Renovated open plan kitchen with quality appliances and dishwasher
Two separate toilets
Renovated main bathroom
Large laundry with external access
Gas heating
North facing rear courtyard
Private front courtyard
Irrigation system to the garden
Access to rear cul de sac from courtyard
Double carport
Stroll to local playing field and shops
Minutes to Cooleman court, Woden and Canberra City
Tenanted

UCV: $286,000
Land Size: 244 sqm
Rates: $2,201 pa
EER: 4.0
Living area: 107.82 sqm

Brett Hayman

Brett Hayman

Partner / Principal

View ProfileM: 0411 414 624
Ask a question about this property 43 Goodenia Street, Rivett ACT 2611

    Martin Faux

    Martin Faux

    Partner, Sales Consultant & Auctioneer

    View ProfileM: 0421 593 602
    Ask a question about this property 43 Goodenia Street, Rivett ACT 2611

      Recently Listed Properties

      Search all 94 properties