6 Hoy Place, ISAACS ACT 2607

Sold

  • 4
  • 2
  • 2
Land size: 3197 m²Building size: 26 m²

Rare offering

Here is your chance to secure a family home at the end of a very tightly held cul-de-sac in the sought after area of Isaacs. Situated at the highest point in Isaacs it offers spectacular sweeping views across OMalley towards the Brindabella Ranges. Located in a secluded position with the Isaacs Ridge being your neighbour this home offers complete privacy.

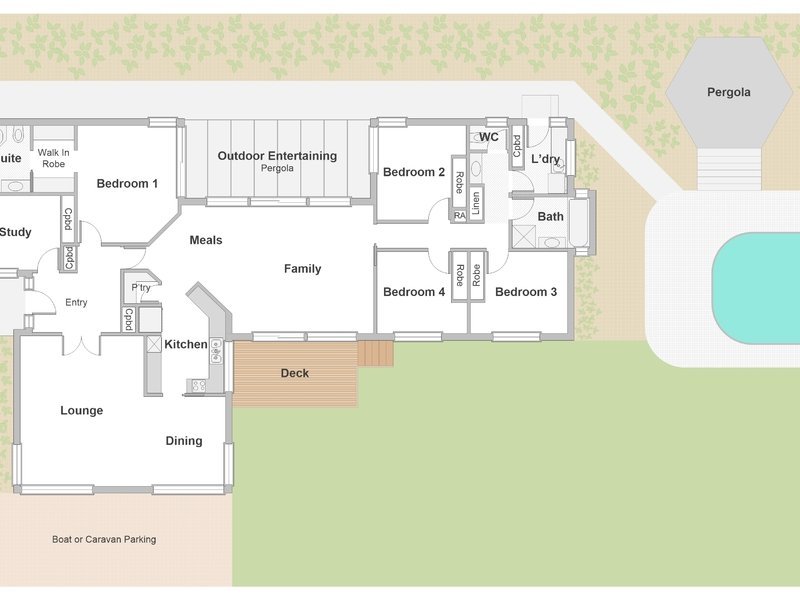
A massive benefit to this home is that it is spread over one level and offers four bedrooms, a study, good size kitchen and two living areas. With an excellent floor plan this home has so much potential. All rooms have full length windows allowing plenty of natural light. The large master bedroom which is segregated from the other bedrooms features his and hers wardrobes which flow through to the ensuite with a spa. The other bedrooms are large with built in robes, two with vistas over the garden and beyond. The study also has a built in robe and views to the front. For a large family the three way bathroom is very practical. The bathroom has a full size bath. A separate toilet, vanity and good size laundry complete this area. The laundry and powder room provide plenty of storage, linen and cupboard space.

The kitchen is the hub of this house which is perfect for any family. The kitchen overlooks the living and meals area. This area has gorgeous three red wood solid wooden floors which are very practical for family wear and tear. The formal dining and living areas are separated by doors off the kitchen and entrance. This formal area is where you get to really appreciate the benefit of living so high on the Isaacs Ridge with spectacular views.

Outside the home are three separate entertainment areas. Off the living area is a good size patio for BBQs and enjoying time with your family and friends. On the other side of the home is a small deck that is overlooked by the kitchen and is perfect for the breakfast or simply relaxing with a drink. At the rear of the property is an 11.5 metre solar heated pool, a paved area around the pool and a gazebo which overlooks the pool and gives you sweeping views. When relaxing in this area you will feel like youre in the country watching birds and kangaroos across the Isaacs Ridge.

To complete this wonderful home is a double lock up garage with automatic doors and space to the side of the house large enough for a caravan, boat or large trailer. Under the house is a large area which is fantastic for storage or could be converted into something more substantial.

Who knows when you will get another chance to secure a home with so much going for it, so don’t let this one slip away!

Features
Single Level home
Quiet neighbourhood
Double lock up garage with automatic doors
Ducted evaporative cooling system
Six star three zoned gas heating system
Marble floor entry
Cloak cupboard in entrance
Large size bedrooms, master segregated with ensuite
Built in robes in all bedrooms
Full length windows in all rooms allowing plenty of natural light
Back to base alarm
Rinnai gas hot water system
Step in pantry
Three red wood solid wooden floors
Three way powder room
Plenty of storage throughout the home
Two living areas inside the home
Quality carpet to formal areas and bedrooms
Three entertaining areas outside the home
Solar heated 11.5 metre below ground pool
Gazebo with views
Large under house storage area
Easy to maintain garden
Space for caravan, boat, trailer or extra cars
Direct access to Isaacs Ridge walking tracks
Close proximity to Canberra Hospital and Woden Town Centre with a short drive to Kingston/Manuka entertainment district.

Recently Listed Properties

Search all 94 properties