6 Young Street, BARTON ACT 2600

Sold

  • 4
  • 2
  • 1
Land size: 1215 m²Building size: 20 m²

When location and lifestyle. really count

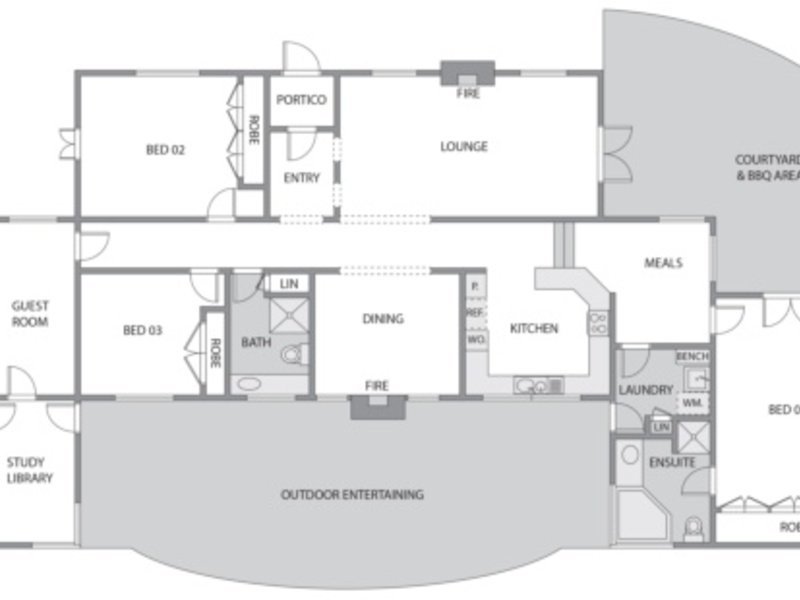
Sited on a large level block of 1,215m2 in a much prized Inner South suburb, homes like this just dont come along that often. This wide frontage north facing home is set in established gardens and overflowing with grace, character and potential. Ample accommodation with 4 bedrooms – 3 with built-ins. Large main bedroom with ensuite and spa. Study/library. Formal lounge room with fireplace and high ceilings opens out to a private north facing courtyard ideal for summer entertaining. Separate dining room with fireplace. North facing aspect means natural light streams through skylights and windows, bathing the interior in sunlight to late in the afternoon. Open kitchen and living space that enjoys a garden outlook. Comfort of R/C air-con. Single lock-up garage with internal access. Convenient, prestigious location, a leisurely walk to the Kingston foreshore, highly regarded public and private schools and just moments to Kingston and Manuka. Enviable living now, but add significant value at your leisure.

Shane Killalea

Shane Killalea

Sales Consultant

View ProfileM: 0412 152 607
Ask a question about this property 6 Young Street, BARTON ACT 2600

    Recently Listed Properties

    Search all 94 properties