74 Carruthers Street, CURTIN ACT 2605

Sold

  • 3
  • 1
  • 3
Land size: 908 m²

Private setting - Backing & Adjacent to reserve

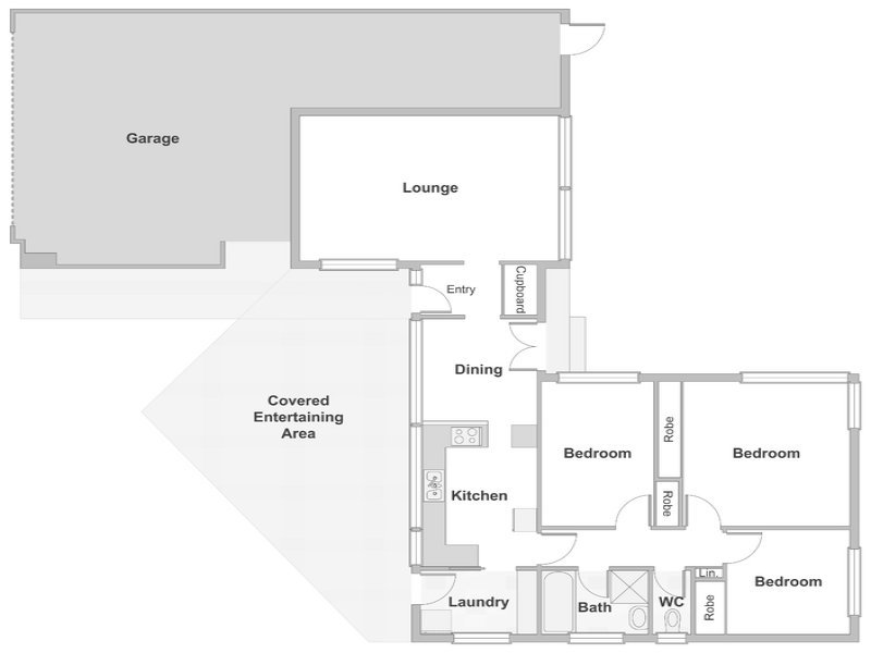
A fantastic opportunity is now available for you to secure a private family home, situated on a 908m2 block in a sought after and tightly held position backing and adjacent to reserve. An abundance of natural light streams throughout the spacious lounge and dining areas, which extend to the functional kitchen that overlooks the paved entertaining area with covered pergola. The three generous bedrooms, all with built in robes, provide the accommodation. There is a beautiful leafy outlook from all rooms, with direct access to reserve and walking trails. Other features include updated bathroom, separate toilet, ducted gas heating and a three car garage and workshop area. Within a short stroll to local schools, transport, Woden and Curtin shopping precincts. An outstanding opportunity.

Quiet family friendly location
Backing and adjacent to reserve
Access to the local schools without crossing a road
Ride around Lake Burley Griffin and access to the local shops with only one road to cross
Ducted gas heating
Solar hot water
Back to grid solar panels
Crime safe security doors
Parquetry hardwood floors
Three generous bedrooms (all with built in robes)
Sun filled lounge and dining areas
Large kitchen
Updated bathroom
Separate toilet
Outdoor entertaining area with covered pergola
Three car garage
Workshop / storage area
908m2 fully fenced rear garden
Rain water tank
Potential to further improve

Brett Hayman

Brett Hayman

Partner / Principal

View ProfileM: 0411 414 624
Ask a question about this property 74 Carruthers Street, CURTIN ACT 2605

    Recently Listed Properties

    Search all 94 properties