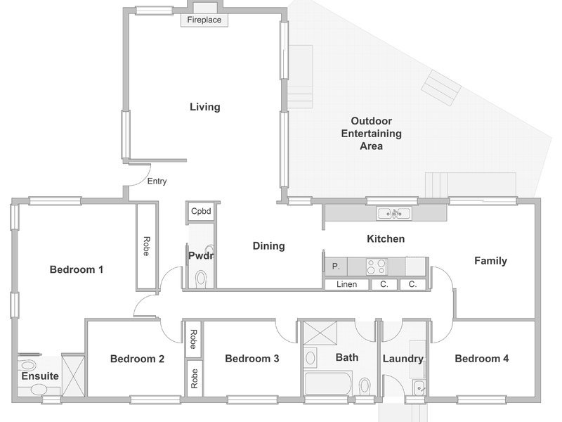
Single Level - Quiet location - Stroll to parkland
Nestled in a superb tree lined street within this quiet and sought after pocket of Chapman is this beautifully presented single level family home. Set on an easy care block of 721m2 this renovated home is ideal for people who appreciate warmth, flow, entertaining and modern lifestyle living. This fresh and exciting home boasts style with versatile living areas including a superb formal lounge at the front of the home with a feature open fire place and Sydney blue gum hardwood floors. The family room / meals area connects directly to the modern kitchen with granite bench tops. The extensive use of glass sliding doors creates a seamless transition to the private North facing alfresco entertaining deck area which overlooks the mature lush green landscaped gardens waiting to burst with colour from a variety of roses, star jasmines and beautiful magnolia trees. Accommodation includes four large bedrooms, the master with updated ensuite. Other features include ducted gas heating, evaporative cooling, double garage with auto door and workshop / storage area. Tastefully decorated throughout with modern fittings, fixtures and colours. Stroll to local shops, schools, parkland and a short drive to Cooleman Court, Woden and Canberra shopping precincts. A unique offering.
Quiet tree lined loop street
Easy care 721m2 block
Single level floor plan
Superb formal lounge area with fire place
Large dining area
Hardwood Sydney blue gum floors
Open plan informal living area
Beautiful kitchen with granite bench tops
Four bedrooms, master with ensuite
Built-in robes in 3 rooms with free-standing robe in 4th
Huge separate family bathroom
Separate powder room
Two alfresco entertaining areas – north facing deck and east facing paved courtyard
Huge deck off the kitchen perfect for bbq and kids play area, shaded by a spectacular Chinese Maple as a feature piece within the deck
Ample storage
Quality window furnishings and floor coverings throughout
All windows either fitted with Crimsafe screens or are lockable
Evaporative cooling
Ducted gas heating
Open “Jetmaster” fire place
Established gardens in front and back fully irrigated easy care
Double garage with auto door
Large amounts of storage
Sensor lights front (and side drive-way) entrance
Nearby Schools Chapman, Mt Stromlo, St John Vianney Primary Schools
One minute walk to Cooleman Ridge
Close to Cooleman Court,
Close to Woden
10 minute drive to Civic or Tuggeranong