8/48 Pearson Street, HOLDER ACT 2611

Sold

  • 2
  • 2
  • 1
Building size: 12 m²

Impeccable condition, whisper quiet location

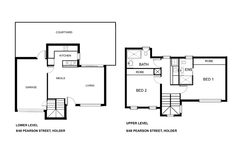
In immaculate condition throughout with a near new feeling, this two storey townhouse offers an ideal balance of indoor and outdoor living spaces with an abundance of natural light and a northern orientation. The modern open plan kitchen connects seamlessly to the tiled living area with glass sliding doors opening to a beautiful travertine paved courtyard and mature landscaped gardens. Upstairs consists of master bedroom with ensuite, generous 2nd bedroom with built in robe and separate laundry. Well located within a quiet tree lined street within a short walk to local and Cooleman Court shopping precinct and ease of access to Woden Town Centre and the CBD. Sought after complex
Ducted reverse cycle heat / cool
Open plan kitchen
Walk in Pantry
Sun filled living area
Single garage with storage and auto door
Internal access from garage
Extra allocated car park
Private courtyard ideal for alfresco dining
Good storage
Stroll to Holder/Cooleman Court shopping precinct

Body Corp: $446.46 per quarter
Rates $1,364.16 Annually

Recently Listed Properties

Search all 94 properties