8 Norman Street, DEAKIN ACT 2600

Sold

  • 4
  • 3
  • 2
Land size: 899 m²Building size: 25 m²

Must be sold as owners have moved to their new home

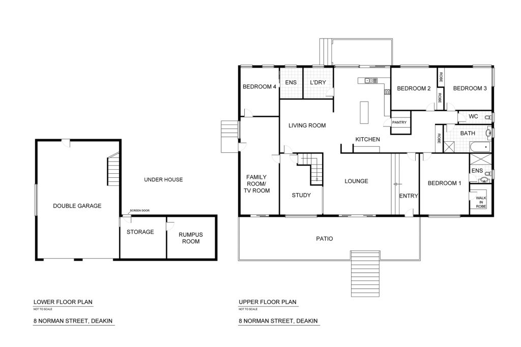
Located in one of this suburbs more sought after streets. Solid brick construction and with recent renovations complete this home is ideal for the growing family. Turn the key unpack and move in. Features include four bedrooms two with beautifully renovated ensuites one with walk-in-robes. Gracious formal lounge room that opens out to a large patio area deal for entertaining or just relaxing. In excellent condition throughout the home features a fabulous new chef’s kitchen with quality top of the range appliances. Great family room area ideal for teenagers that is separate to the main kitchen and living room. This home has ample room for everyone. Huge under house storage that could be easily utilised as additional living space, rumpus room or home office. Large double lock-up garage plus additional storage. With a sunny easterly aspect and easy care garden and so close to everything the Inner South lifestyle has to offer. Don’t miss this blue ribbon opportunity. Additional Features Newly installed roof and underfloor InsulationGranite kitchen (40mm) and laundry (1.8mm) benchtopsReverse cycle air-conditioningDouble glazing widows(Kitchen and room #4)Hardwood flooring (Sydney bluegum) Bedroom 1 has walk-in wardrobe

Shane Killalea

Shane Killalea

Sales Consultant

View ProfileM: 0412 152 607
Ask a question about this property 8 Norman Street, DEAKIN ACT 2600

    Recently Listed Properties

    Search all 94 properties