Properties > ISAACS > 9 Huffer Close, ISAACS ACT 2607
Here is a great opportunity for a large family or someone who wants to work from home to secure a fantastic home located in a tightly held cul-de-sac of Isaacs backing onto the pine plantation. This is the first time this property has been on offer for almost twenty years but the owners are moving and the place must be sold.
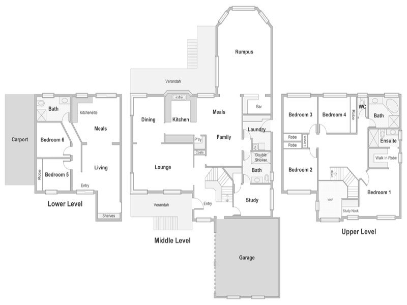
Spread over three separate levels this large home has all the space you need. On the ground level is a self contained unit with two bedrooms, kitchenette, living area and a bathroom. To the side is a single carport which also provides access to the rear yard. This unit has its own power and water meter, for those who want their independence without leaving home or for an office.
On the first level is the main house with high ceilings. This level contains a study/bedroom with access to the main bathroom. In the bathroom is a double shower. With a formal lounge fitting even the biggest families, this home will impress with its size. The home flows from the formal dining into the kitchen and through the meals area which adjoins a family room. The most used room on this level is without a doubt the rumpus room, with high ceilings and windows facing the Brindabella Ranges. To top it off is a bar to entertain any sized gathering. Even on those cool winter days this rumpus area is filled with warm winter sun.
The upper level contains four bedrooms with built in robes in three, with a walk in robe in the master bedroom. Each room has large windows which offer plenty of light and views to the Brindabella Ranges and pine plantation. The master bedroom also has a study nook which overlooks the entrance. Included in the upper level is an ensuite and a bathroom with a spa.
To complement this home is a double garage and an intercom system throughout the home. The main house has reverse cycle air conditioning and a vacuum system. Adjacent to the lower level is a large storage area. With gate access to the pine plantation, living here has plenty of benefits.
Mawson, Woden, Erindale and the Canberra hospital are all just a short distance away. Add to this you are close to some great schools with public transport and school buses just a short walk to the end of the street. An easily maintained garden, with mature fruit trees, the roses in season are wonderful and the bulbs in Spring add lots of colour to the home.
Features:
Located in a tightly held cul-de-sac
Backing onto the Isaacs Ridge pine plantation
Views towards Brindabella Ranges
Four good sized bedrooms plus a fifth bedroom/study
Reverse cycle air conditioning in the main house
Ducted vacuum system in the main house
High ceiling in the middle level
Intercom system
Double garage and single carport
Plenty of storage area throughout the home
Self contained two bedroom unit with own power and water meter
Short drive to Woden Town Centre and Canberra Hospital
Close to public transport
Plenty of off street parking
An easy to maintain garden
Have a question we haven't quite answered? Use this form and we'll touch base within 24 hours.
Have a question we haven't quite answered? Use this form and we'll touch base within 24 hours.